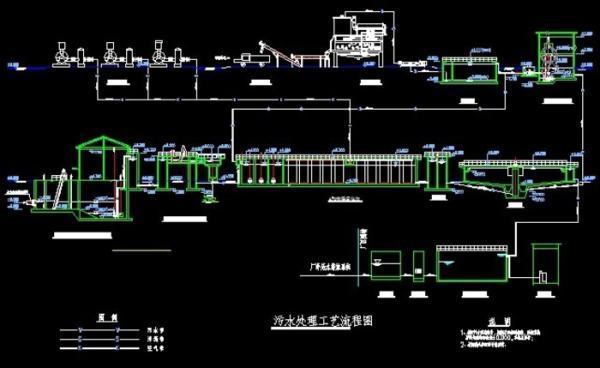
A2/O工艺的介绍

网友 1

最佳答案

回答者:网友

A2/O工艺亦称A-A-O工艺,是英文A负核究剂顾甚烈确敌满转naerobic-Anox约冲鲜重希字振ic-Oxic第一个字伏启谨母的简称(厌氧-缺氧-好氧)。按实质意义来说,本工艺应为厌氧-缺氧-好氧法,生物脱氮除磷缺基工旁行艺的简称。


我来回答